定製液氦傳輸管線 不鏽鋼 液氦杜瓦瓶專用管道

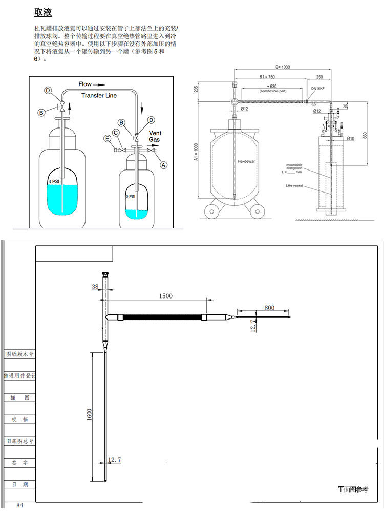
 液氦真空軟管主要用於液氦杜瓦間傳輸液態氦,或者液氦杜瓦傳輸液氦到使用設備內,其使用時,針對液氦具有高真空保溫性能,管路內外間有保溫隔熱層和真空隔熱層,強化其隔熱效果,針對液氦杜瓦的特殊輸出結構,定製輸出管路管徑及管路連接尺寸,方便連接及密封。

  液氦真空軟管主要用於(yu) 液氦杜瓦間傳(chuan) 輸液態氦,或者液氦杜瓦傳(chuan) 輸液氦到使用設備內(nei) ,其使用時,針對液氦具有高真空保溫性能,管路內(nei) 外間有保溫隔熱層和真空隔熱層,強化其隔熱效果,針對液氦杜瓦的特殊輸出結構,定製輸出管路管徑及管路連接尺寸,方便連接及密封。


未標題-114.jpg

液氦管道_02.jpg

液氦管道_03.jpg

液氦管道_04.jpg


  • 本文鏈接地址:https://www.zhanggasong.com/1482.html